Bayreuth – Vielseitig nutzbare Büroflächen auf zwei Etagen im Industriegebiet

Büroflächen in zentraler Lage im Industriegebiet Bayreuth.
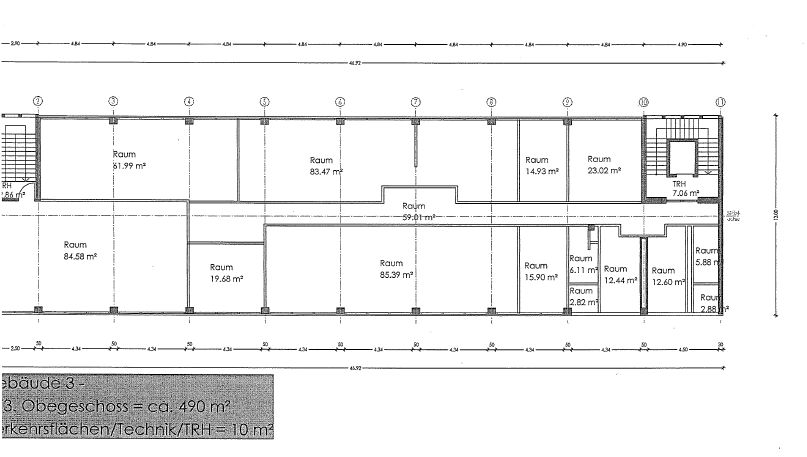
Zwei Etagen mit jeweils ca. 500 m². Vielseitig nutzbar.

Die Räumlichkeiten können nach individuellen Wünschen und Anforderungen gestaltet werden.
Die Räume befinden sich in der 2. und 3. Etage. Sonnenschutz und eine Klimaanlage ist vorhanden.

Parkplätze stehen direkt am Objekt zur Verfügung.

Grunddaten

Lage: Bayreuth Stadtteil
Stadtteil: Industriegebiet St. Georgen
Lagebeschreibung/-qualität: Industriegebiet (GI), Gewerbliches Umfeld
Baurechtliche Situation: mit verbindlichen Bebauungsplan (§30 BauGB)
Art der Nutzung: Büro / Praxis
Verfügbar ab: 01.07.2026
Kauf/Miete: Miete

Verkehrsanbindung

A9, Anschlussstelle Bayreuth Nord 1 km

Verkehrsinfrastruktur

Bushaltestelle 0.1 km
Hauptbahnhof Bayreuth 3 km
Flughafen Nürnberg 88 km
Grundriss einer Büroetage
Quelle: Maisel Transport und Logistik

Mehr Details

Für weitere Informationen wenden Sie sich an den Vermieter:

Ansprechpartner

Stephan Maisel
Maisel GbR
09209 98822
stephan.maisel@maisel-spedition.de
https://maisel-immo.de/

Katja Meier
Maisel GbR
09209 988 24
katja.meier@maisel-spedition.de

Veröffentlichungsdatum

Das Angebot wurde am 12. März 2026 eingestellt.